Wohnung
1090 Wien
Objekt Nr.: 777

Ältere Neubauhauptmiete in Zentrumslage!

Objekt-Nr.: 777

  • Ort: 1090 Wien
  • Straße: Kolingasse 10


  PROVISIONSFREI für den MIETER!

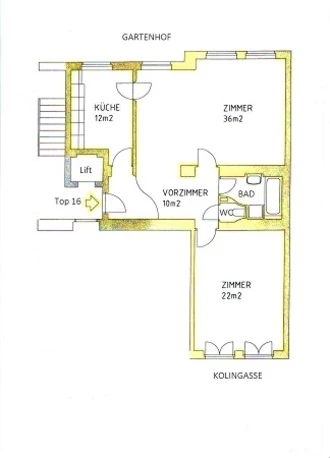
2 Zimmer:      
(36m² +  22m²)
                       Parkettböden
oder

2 Zimmer:     
(22m² + 20m²) 1 Kabinett: (16m²)
                      Parkettböden
     durch das Aufstellen eines Raumteilers (Möbel)!

Küche:           
(12m²) mit Ober und Unterbauschränken,
                       
neuer E-Herd mit Induktionsfeld und Backrohr
                       D
unstabzug, Abwäsche, Geschirrspüler,
                       neuer Einbaukühlschrank, Natursteinboden,
Badezimmer:  (2,5m²) Marmorbad mit Badewanne, Waschtisch
                       Waschmaschine, Marmorverkleidung an Wand
                       und Boden
WC separat:    (0,8m²)
                       Marmorverkleidung an Wand und
Boden
Vorzimmer:     (10m²)  Naturstein- und Parkettboden

Die Wohnung ist mit einer Gasetagenheizung ausgestattet mit
Heiztherme im Vorzimmer  und  Heizradiatoren  in allen Räumen
Warmwasseraufbereitung durch E-Boiler im Badezimmer+Küche
Absolut  hell  und sonnig,  gartenhof-  und  gassenseitig mit
franz.  Fenstern (südost u. nordwest), 5. Liftstock. Sehr gute
Nahversorgung  und  Infrastruktur,  parallel   zum  Schottenring
(2. Straße) im Zentrum gelegen, nächst Votivkirche, Universität,
etc.  In  unmittelbarer Nähe stehen die U2  Schottentor, sowie
die  Straßenbahnlinien  D, 1, 37, 38, 40, 41, 42, 43, 44, 71 und
die Buslinien  3A und 40A  zur  Verfügung. Donaukanalnähe und
Schwedenplatznah.

Heizwärmebedarf (HWB):
       Klasse D          105 kWh/m² a
 
Mietvertrag:   5 Jahre befristet

Zustand: sehr gut                                            Sofortbezug!


Miete:    €  1.115,24       Nettomiete
              €     132,92       Betriebskosten
              €       22,75       Lift
              €     127,09       10% MWSt.
              ___________
              €  1.398,--         monatl. Gesamtmiete


              Gas und  Strom ist separat nach Verbrauch
              mit Sturmenergie direkt zu verrechnen!

Kosten:
           
Kaution                            €  4.194,--

    PROVISIONSFREI für den MIETER!

  • Kategorie: Wohnung
  • Angebot: Miete
  • Wohnfläche: 82m²
  • Zimmer: 2
  • Preis: € 1.398