
Idyllisches Kleingartenhaus in Grünruhelage
Objekt-Nr.: 1135
- Ort: 1170 Wien
- Straße: Forsthausweg 6
PROVISIONSFREI für den MIETER!
Gesamtgrund: 442m²
verbaute Fläche: 30m²
Wohnnutzfläche: ca. 47m²
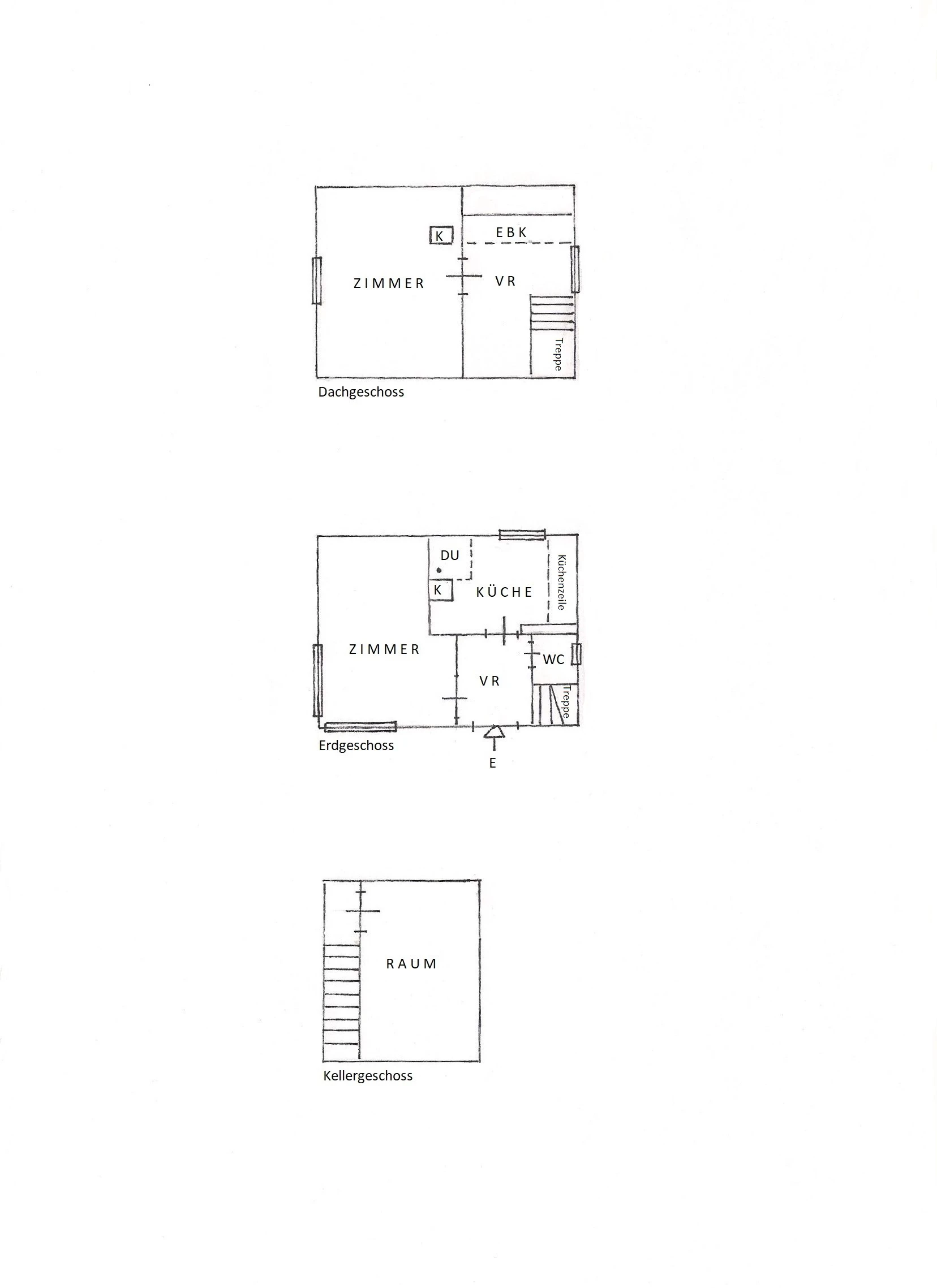
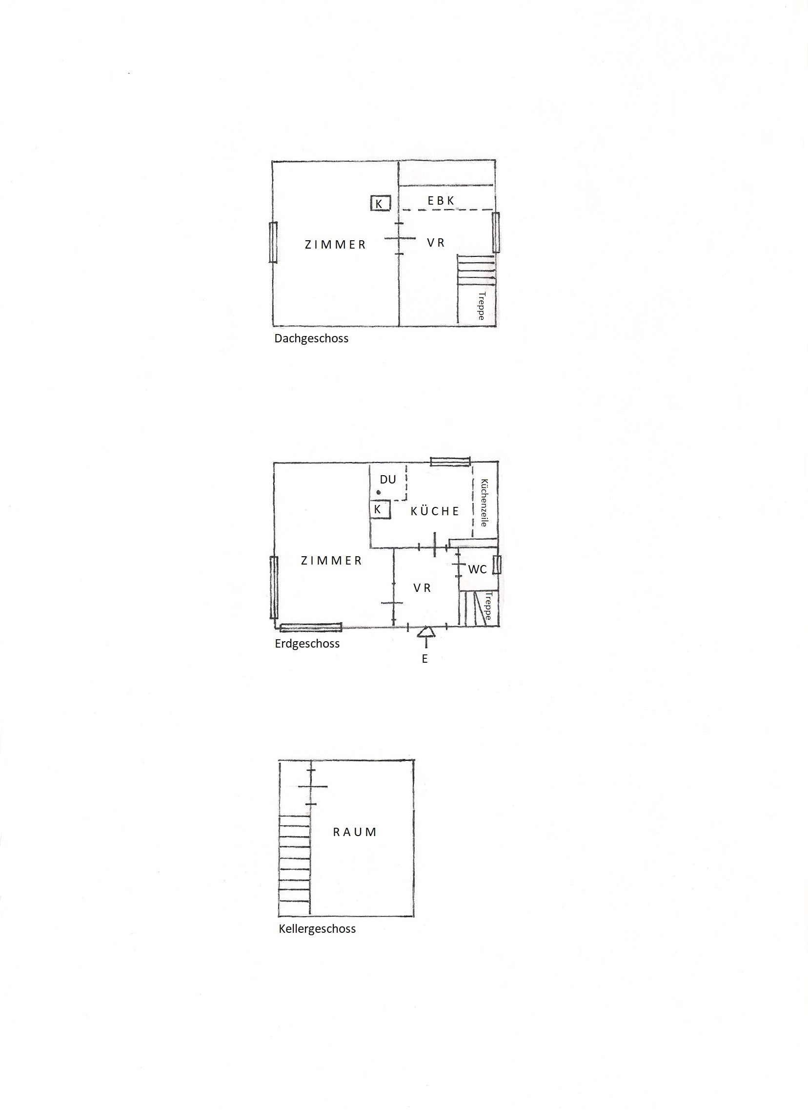
(Erdgeschoss, Dachgeschoss)
plus Keller: ca. 12,50m²
Baujahr: 1940
2 Autoabstellplätze: am Grund (elektrisches Einfahrtstor)
Erdgeschoss: ca. 25m²
mit Ausgang in den Garten
Wohnzimmer: 12,50m² (Holzboden), 2 Holzverbundfenster,
diverse Einrichtungsgegestände (können entfernt werden),
Küche: 6,50m² (Fliesenboden) bestehend aus 1 Küchenkombi-
gerät (2 E-Kochplatten, Spüle u. Kühlschrank, 1 Hochschrank,
gemauerte Dusche (gefliest) und Waschbecken, neues
Kunstofffenster
WC separat: 1,10m² (Wand- u. Bodenfliesen), vom Vorraum
begehbar, neues Kunsstofffenster
Vorraum: 4m² (Bodenfliesen) Eingang vom Garten
über eine Holzstiege (12 steile Stufen) gelangt man in das
Dachgechoss: ca. 22m²
1 Zimmer: 13,50m² Holzboden, neues Kunststofffenster
Vorraum: 8,50m² Holzboden, Einbauschrank, Einbaukästchen
neues Kunststofffenster,
in das Kellergeschoss:
gelangt man über eine Betonstiege vom Garten Außenbereich
Kellerraum: ca. 12,50m² (Betonboden) E-Warmwasserboiler
Das Kleingartenhaus befindet sich in gepflegtem Zustand.
Kaminheizung im Wohnzimmer ansonsten Infrarotheizung,
ausgemalt, 220V und 380V Anschlüsse
Erstbezug nach Teilrenovierung!
Heizwärmebedarf (HWB): Klasse G 293kWh/m² a
Zustand: sehr gut Sofortbezug!
Mietvertrag: unbefristet mit Kündigungsverzicht des
Vermieters auf 5 Jahre!
Besichtigung: nur nach Voranmeldung per Mail unter:
office@cetraimmobilien.at
Miete: € 1.198,-- monatliche Gesamtmiete
inkl. 10% USt.,
Feuer- und Haftpflichtversicherung
separat zu bezahlen ist der Verbrauch
für Strom, Wasser, Abwasser, Müll,
Rauchfangkehrer, Haushaltsversicherung
Kosten:
Kaution € 3.594,--
PROVISIONSFREI für den MIETER!
Zufahrt: vor Busstation 43A Obere Waldandacht (von Neuwaldegg
kommend) scharf rechts abbiegen-über Waldzeile bis Forsthausweg fahren-rechts abbiegen. Das 2. Grundstück befindet auf der linken Seite. (Forsthausweg 6)
- Kategorie: Haus
- Angebot: Miete
- Wohnfläche: 47m²
- Grundfläche: 442m²
- Zimmer: 2
- Preis: € 1.198